草莓破解版下载,草莓视频污片,草莓性爱视频,草莓视频色板APP下载

    当前位置:网站首页 > 新闻资讯 > 公司动态

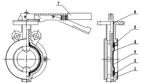
    草莓破解版下载氟塑料衬里层的质量要求

    作者:永嘉亚特防腐阀门有限公司  来源:http://www.cclwei.com  更新时间:2016-03-31 0:02:09  点击次数:
    草莓破解版下载氟塑料衬里层的质量要求
    氟塑料衬里阀门的表面应当光滑平整、无气孔、裂纹、夹渣等缺陷。法兰的翻边处及其他转角处应色泽均匀,无泛白现象。并符合GB/T23711.1-2009和GB/T23711.6-2009的规定。氟塑料是高分子材料,有数据表明,氟塑料密度越大渗透系数越小,它们之间有线性关系。氟塑料衬里层的密度应≥2.16g/cm3,且不允许有杂质存在。
    氟塑料的防腐蚀性能,必须达到标准的规定。如不能确定氟塑料的防腐蚀性能,必须按GB/T1763的规定做试验确认。特别是在更换新牌号氟塑料时要作试验。用于食品、医药、卫生级阀门的衬里材料,还应无毒、无菌、无杂质清洁卫生的材料,符合GB/T17219的规定。
    氟塑料与基体的结合强度,是衡量衬里质量好坏的标准之一。氟塑料衬里层应与基体贴合,法兰面的衬里层应衬满密封面,并且有扣紧基体的设计结构,衬里层在负压0.08MPa条件下,氟塑料衬里层不出现凸起现象。
     制造工艺
    1 氟塑料衬里前的表面处理
    阀门衬里前,应将受衬面毛刺、油污清除干净、修磨平整,尽可能使受衬面达到GB8923中规定的St2级,还可以采用机械加工的方法,将受衬面加工出T形槽和螺纹沟槽,增加衬里层与基体的结合强度,防止衬里层脱壳。将衬里面内部转角处的棱角锐边倒钝,内圆角R>2mm,外圆角R>3mm,减少应力,防止衬里层被锐角刺破。应尽量满足衬里工艺的要求。
    2 模压成型
    将需要模压的蝶阀零件放入模具中,送入加热炉内加温,加温到一定温度,如将氟塑料加热到290℃~370℃使其熔融,在7~12MPa压力下,使熔体充满模具、压实,冷至150℃脱模即待到制品。见工艺流程图。
    草莓破解版下载氟塑料衬里层的质量要求草莓破解版下载氟塑料衬里层的质量要求草莓破解版下载氟塑料衬里层的质量要求
    草莓破解版下载,草莓视频污片,永嘉草莓视频色板APP下载生产厂家永嘉亚特防腐阀门有限公司专业生产草莓破解版下载,草莓视频污片,草莓破解版下载谒诚为您提供优质的产品与服务。
    永嘉亚特防腐阀门有限公司
    联系人:吴经理
    电话:0577-67161009
    手机:13858881433 18966252897
    传真:0577-67160009
    Q  Q:936610452
    邮箱:wzszsbz@163.com
    网址:http://www.cclwei.com
    销售地址:温州瓯北镇肖桥头沿河路11号
    公司地址:永嘉县瓯北镇东瓯工业区和一村
    本文链接:http://www.cclwei.com//news/news370.html
    上一篇:草莓破解版下载模压工艺
    下一篇:电动草莓破解版下载在安装时的具体要求

    相关文章

    草莓视频色板APP下载属于什么阀门-2020-05-20
    草莓视频色板APP下载的作用-2020-05-07
    草莓视频污片都适合什么样的环境-2016-04-22
    草莓视频污片主要检查内容-2016-04-22
    草莓视频污片的优点-2016-04-22
    防腐草莓视频色板APP下载应用的注意事项-2016-04-22
    草莓视频污片的密封面如何研磨?-2015-06-11
    简析氟塑料衬里蝶阀的基本知识-2021-06-28
    草莓视频色板APP下载衬里材料,草莓视频色板APP下载衬F4与F46区别说明-2016-04-28
    草莓破解版下载及连接方式的分类-2016-04-07
    永嘉草莓性爱视频阀业有限公司郑重声明-2019-09-12
    草莓视频污片用途和使用-2016-04-27
    草莓视频污片的密封面如何堆焊?-2016-04-27
    草莓视频污片的优势-2016-04-27
    草莓破解版下载安装使用和注意事项(上)-2016-04-27
    关于草莓破解版下载

    公司简介

    联系草莓破解版下载

    网 址:http://www.cclwei.com邮 箱:wzszsbz@163.com
    公司地址:永嘉县瓯北镇东瓯工业区和一村
    © 2019 浙江草莓性爱视频阀业有限公司 版权所有 浙ICP备76479278号
    网站地图